Indbygningselementer
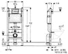
Geberit Duofix Basic forvægselement
112 cm, SPK UP100 + DELTA 35 hvid + lyddæmpningssæt
112 cm, SPK UP100 + DE...
Reservedele - WC-forvægselement G3008
Reservedele sæt, 3-delt
Reservedele sæt, 3-delt
Reservedele - WC-forvægselement G3005
Reservedele sæt, 3-delt
Reservedele sæt, 3-delt
Reservedele - WC-forvægselement G3004A
Reservedele sæt, 3-delt
Reservedele sæt, 3-delt
Monteringssæt til vægmonteret toilet og bidet
Til skjult montering
Til skjult montering
WC - Forvægselement G3005A
Top- eller Frontaktivering
Top- eller Frontaktive...
Geberit Duofix Basic forvægselement
112 cm, SPK UP100 + DELTA 25 hvid + lyddæmpningssæt
112 cm, SPK UP100 + DE...
Geberit Duofix Basic forvægselement
112 cm, SPK UP100 + DELTA 25 matforkromet + lyddæmpningssæt
112 cm, SPK UP100 + DE...
Indbygningsstativ til vægophængt toiletkumme G3004A
Indbygningsplade fås som ekstraudstyr
Indbygningsplade fås s...
Indbygningscisterne til væghængt toilet G3008
Indbygningsplade fås som ekstraudstyr
Indbygningsplade fås s...
Indbygningselementer
Indbygningselementer bærer det væghængte toilet, skjuler teknik og giver en plan, rolig front i badeværelset. Start her, hvis du vil sikre stabil bæring, korrekt højde og nem service – for komplet overblik over toiletløsninger kan du gå til hubben Toiletter.
Vælg indbygningselementer efter projekt og vægtype: Forvægssystemer er oplagte i renovering, mens indbygning i rå væg passer til nybyg, hvor du ønsker en helt plan flade. Tjek bæreevne, boltafstand og justeringsmuligheder, så skål og betjeningsplade ender præcist, hvor du vil have dem.
Kompatibilitet er nøglen. Kombinér elementet med en skål fra væghængte toiletter, og vælg en cisterne, der matcher funktion og vandforbrug under cisternemoduler. Overvej dobbeltskyl for at sænke forbruget og et kvalitetselement for stille, kontrolleret skyl.
Planlæg serviceadgang og vedligehold tidligt. De fleste indbygningselementer giver adgang via betjeningspladen, så ventiler og mekanik kan serviceres uden at åbne væggen. Koordiner rørføring og afkobling for at reducere resonans og lyd i daglig brug.
Komfort og funktion kan udvides. Ønsker du vandbaseret hygiejne, kan indbygningselementer kombineres med douchetoiletter – husk i så fald også at planlægge strømtilslutning og tjekke driftstryk. Vil du gøre købet enkelt, kan du vælge en samlet løsning under toiletpakker.
Uanset om du opgraderer et gæstetoilet eller indretter familiebadet, hjælper indbygningselementer dig med at balancere æstetik, drift og vedligehold – en diskret konstruktion, der får helheden til at fungere i hverdagen.
FAQ om indbygningselementer
- Passer elementet til alle skåle? Tjek boltafstand, bæreevne og mål i specifikationerne for både element og toiletskål.
- Kan det bruges i letvægge? Ja, med korrekt forstærkning/forvæg og fastgørelse efter anvisningerne.
- Hvordan serviceres cisternen? Adgang sker normalt via betjeningspladen; følg producentens servicevejledning.
- Hvordan minimerer jeg lyd? Brug lyddæmpende indbygningsmaterialer og korrekt rør-afkobling; vælg cisterne med støjreduktion.
- Kan jeg justere siddehøjden? Ja, de fleste indbygningselementer har højdejustering ved montage – se målangivelserne.
 
 
 
 
 
 
 
 
 
 
 
 
 
 
 
 
 
 
 
 
 
 
 
 
 
 
 
 
 
 
 
 
 
 
 
 
 
 
 
 
 
 
 
 
 
 
 
 
 
 
 
 
 
 
 
 
 
 
 
 
 
 
 
 
 
 
 
 
 
 
 
 
 
 
 
 
 
 
 
 
 
 
 
 
 
 
 
 
 
 
 
 
 
 
 
 
 
 
 
 
 
 
 
 
 
 
 
 
 

